智海鲲鹏

新闻资讯

2025-12-20 16:55:55

从三级到一级——解析法医DNA实验室建设的核心要素

分享到:

随着科技的不断进步,法医DNA分析技术已经成为解开犯罪谜团的重要工具,法医DNA实验室则是这一领域的核心所在。这些实验室通过精准的DNA分析,为刑侦破案提供了至关重要的线索,帮助还原事实真相,推动司法公正。今天,智海鲲鹏带您一起了解法医DNA实验室的建设标准···

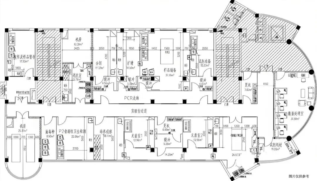
法医DNA实验室的功能区域:

法医DNA实验室作为进行DNA分析和鉴定的专业场所,通常由多个功能区域构成,每个区域都有特定的任务,并且彼此独立,以避免交叉污染。这些功能区域通常包括样本接收区、DNA提取区、PCR扩增区、检测区、数据库管理区等。实验室内的每个区域都有明确的流程与功能,确保DNA分析过程的高效和准确性。


图片

样本接收区:负责接收待检样本,并对样本进行登记和初步检测,确保样本来源的合法性和可靠性。

DNA提取区:负责从各类生物样本中提取DNA,是整个实验流程中的关键环节。

PCR扩增区:通过聚合酶链式反应(PCR)技术对DNA进行扩增,为后续分析提供足够的DNA数量。

检测区:采用先进的检测设备进行DNA的分型与分析,得出科学可靠的鉴定结果。

数据库管理区:存储和管理DNA数据库数据,方便后期检索与比对,进一步推动案件侦破。

智海鲲鹏设计部总监郑明晗表示,这些功能区域的独立设置不仅有助于提高工作效率,还能有效避免污染,确保实验结果的准确性。


图片

法医DNA实验室的等级划分与要求:

根据《公安机关DNA实验室等级评定办法(试行)》的要求,法医DNA实验室按照其建设规模、技术能力和应用领域分为三个等级:三级、二级和一级。


三级DNA实验室:


三级DNA实验室是最基本的实验室,通常设置在县级公安机关,用于满足基本的DNA分析需求。根据相关要求,三级实验室的使用面积不得小于130平方米,并且实验室的各功能区应当合理布局,确保单向流动的检验鉴定流程。该实验室必须具备防火、防震、防腐、防潮、防静电等基础设施,还要确保实验室内部温度、湿度等环境条件的稳定,以保证实验的准确性。

三级DNA实验室的建设要求较为基础,适合处理日常的、较为简单的DNA分析工作,通常用于案件中的常规样本检验以及数据的初步比对。


二级DNA实验室:

二级DNA实验室在三级实验室的基础上要求更高,主要承担区域性较大案件(事)件的DNA检验任务,特别是一些自然灾害、重大事故等未知名shi体身份识别的DNA检验工作。二级实验室的面积不得小于300平方米,其中实验室用房面积不得小于200平方米。该实验室还需具备特殊生物检材的DNA检验能力,并且能够进行大规模人员样本的DNA检验工作。

二级DNA实验室在技术设备和人员配置上要求更为先进,除了具备基本的检验能力外,还需要在一定程度上处于省内的技术前沿,具备较强的实验室技术水平和应用能力。

一级DNA实验室:

一级DNA实验室是最高等级的法医DNA实验室,通常设立在较大规模的公安机关或专门的法医学研究机构,主要承担省级乃至全国范围内的重大案件DNA分析工作。一级DNA实验室的使用面积要求达到800平方米,其中实验用房面积不少于600平方米。该实验室不仅能够进行常规的DNA检验,还需要具备特殊生物检材、常规生物检材、人员生物样本的DNA检验和数据库管理能力。

一级DNA实验室的建设要求非常严格,必须具备高度的功能分区和设施配置。各个功能区按照实验流程进行分布,从初检、提取、加样、扩增到分析等环节都有相应的专业区域。实验室还需要配备生物安全柜、工作台、冰箱、储物柜等设备,同时还需具备空气净化、负压区间等高端设施,确保实验过程中的安全性与可靠性。

此外,一级实验室还应具备现场勘查装备室、更衣室、多媒体室和资料室等附属设施,满足各类特殊需求。生物安全柜、感应水龙头、紧急洗眼器等安全设备也是必不可少的,确保工作人员在高风险环境下的安全操作。

法医DNA实验室的建设意义:

随着犯罪手段的日益复杂,传统的刑侦手段已难以满足司法公正的需求。而法医DNA技术的出现,无疑为破解复杂案件提供了新的契机和补充。法医DNA实验室作为这一技术的核心平台,肩负着重要的使命。

图片

智海鲲鹏总经理王彬表示,从三级到一级DNA实验室的逐步升级,不仅体现了技术的发展和公安机关对司法公正的追求,也展现了社会对犯罪侦破效率和精确度的不断提升要求。随着法医DNA技术的不断进步,未来的法医DNA实验室将在科技、设备、环境等方面不断创新,发挥出更大作用。

随着技术的不断进步和法医DNA实验室建设标准的不断提升,这些实验室将更加高效、智能,为社会的和谐稳定作出更多的贡献。智海鲲鹏作为专业的实验室建设服务商,也将在这一过程中不断努力,助力中国科研实验室建设,为国家的科技强国梦想贡献力量。



上一篇:干货分享 | 医学院实验室升级为BSL2实验室需要注意哪些事项
下一篇:实验室安全无小事,这些知识要牢记!